Остекление балконов Слайдорс раздвижная ПВХ система. Особенности системы Слайдорс
Остекление балконов Слайдорс раздвижная ПВХ система. Особенности системы Слайдорс
Экономия площади и денег
Слайдорс теплый, при этом он дешевле, чем классические окна ПВХ. А сдвижные створки позволяют Вам по максимуму задействовать каждый сантиметр. Например, находящиеся на подоконнике предметы не будут препятствовать открыванию створок.
Раздвижные двери
Из этого же профиля мы изготавливаем балконные и межкомнатные двери. Если вы планируете установить подобные двери вместо распашного балконного блока, помните, лоджия при этом должна быть теплой, а высота дверного проема не должна превышать 2.2 метра.
Панорамные конструкции
Благодаря внутреннему армированию пластиковые раздвижные окна очень прочные и способны достойно выдерживать ветровые нагрузки при панорамном остеклении . К тому же вы можете сочетать в одной конструкции распашные, раздвижные и глухие окна в любом порядке.
Если Вы решили установить на балконе пластиковые раздвижные окна Слайдорс, то выбирайте стеклопакет. Потому что он со стеклом не теплее алюминия, при этом последний дешевле.
Данная система считается полутеплой, и по теплоизоляции ее можно сравнить с деревянными рамами советской эпохи. Звукоизоляция со стеклопакетом не уступает стандартным пластиковым окнам .
Не можете выбрать между холодным алюминиевым и теплым распашным ПВХ остеклением? Обратите внимание на раздвижные пластиковые окна slidors, такое остекление балкона наверняка заинтересует вас. Оно сочетает в себе достоинства обоих вариантов — это раздвижные пластиковые окна с хорошими теплоизоляционными свойствами.
Данная система обеспечивает полутеплое остекление балконов с защитой от холода, ветра, уличного шума и пыли, придает эстетичный вид, позволяет обустроить лоджию для использования круглый год.
Slidors недостатки. Главные отличия Проведал и Слайдорс
Главные отличия профиля Проведал от Слайдорс заключаются в материале изготовления профиля, что напрямую влияет на сферу применения.
При создании раздвижной системы Provedal используется алюминиевый профиль, поэтому их устанавливают только при холодном остеклении лоджий и балконов.
Это отнюдь не связано со свойствами металла, а с тем, что его толщина составляет 60 мм с возможностью вставить стекло 4 мм, а не стеклопакет, обладающий большими теплоизоляционными характеристиками. Главная задача таких окон — защитить помещение от проникновения пыли, ветра и повышенной влажности.
Профиль Слайдорс изготавливается и поливинилхлорида и чаще используется при теплом остеклении. Это становится возможным, благодаря выбору желаемой толщины рамы — она бывает 58, 60 и 70 мм.
В такую конструкцию можно вставить не только одинарное стекло, но и стеклопакет с двумя полотнами и одной камерой. После установки сложных оконных раздвижных моделей коэффициент теплоизоляции и шумопоглощения увеличивается в несколько раз.
Существенным отличием является функциональность в зимнее время. Так как в окнах раздвижной системы Provedal монтируют низкие рельсы, во время снегопада и низких температур профиль блокируется и открыть такое окно не представляется возможным. При остеклении Слайдорс используют высокие направляющие, которые остаются рабочими даже в сложных погодных условиях.
Остекление Provedal и Slidors отличается и по универсальности. Первые являются оригинальными. При установке и обслуживании допустимо использование только родных комплектующих. Вторая система позволяет подобрать подходящие москитные сетки или фурнитуру других брендов.
Слайдорс технические характеристики. Преимущества раздвижных окон Слайдорс (Slidors)
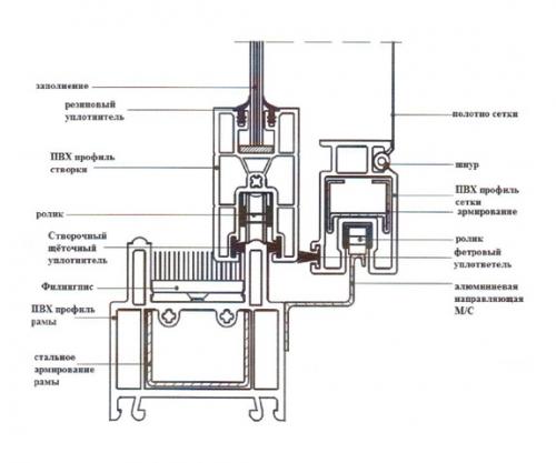
Способ открытия проема здесь подобен механизму открытия створок в шкафах-купе. Собственно, название системы переводится как «скользящие двери». Суть механизма заключается в наличии на каждой створке роликов, двигающихся вдоль зафиксированных внизу и вверху направляющих и открывающих проем. В комплект входит также отдельный рельс для установки и перемещения москитной сетки для защиты от насекомых.

Преимущества пластиковых оконных систем раздвижного типа:
- Эффективная защита от ветра, осадков, пыли и низких температур.
- Простота и удобство в использовании.
- Возможность создать на основе одного и того же профиля остекление холодного (при использовании одинарного стекла) или полу теплого (при комплектации стеклопакетом шириной 18 мм) типа.
- Долговечность и высокая прочность, благодаря внутреннему армированию оцинкованной арматурой.
- Многокамерная конструкция защищает профиль от промерзания зимой.
- Взломобезопасность. Проникнуть в помещение снаружи можно, лишь выдавив стекло.
- Максимальная экономия свободного пространства. Створки просто сдвигаются в сторону, не требуя свободного места для открытия.
- Срок службы до 50 лет с полным сохранением функционала и эстетических свойств.
Технические характеристики пластикового профиля для окон Слайдорс (Slidors)
Пластиковые оконные системы раздвижного типа набирают популярность среди заказчиков, благодаря своим техническим характеристикам, делающим такой профиль настоящей находкой для многих покупателей. Перечислим его ключевые технические характеристики:
Состоит из 3-х воздушных камер
Ширина профиля 58 мм
Система направляющих имеет круглое сечение, что позволяет створкам перемещаться бесшумно
Армирование оцинкованной арматурой для повышенной прочности
Комплектуется дополнительным рельсом для москитной сетки
Серповидный замок (он же оконная ручка) надежно фиксирует створки, защищая от взлома или случайного закрытия
Щеточный уплотнитель обеспечивает герметичность конструкции
Возможность заполнения как обычным стеклом, так и стеклопакетом шириной в 18 мм
Заполнение одинарным стеклом подходит для холодного остекления, поскольку не обеспечивает существенной теплоизоляции. При комплектации стеклопакетом такая конструкция может использоваться для утепленных лоджий, балконных помещений в квартирах и в частных домовладениях для оформления террас, поскольку гораздо лучше удерживает тепло внутри и эффективнее подавляет уличный шум.
Slidors профиль. Преимущества профиля Slidors
В конце 90-х годов на российском рынке появилась корейская компания Slidors, специализирующаяся на производстве высококачественных профилей ПВХ. Россияне сразу полюбили её. И в этом кроется несколько причин.
Слайдорс является раздвижным пластиковым профилем эконом-класса. При этом он обладает хорошим качеством. Единственный его недостаток в том, что относится к смешанному типу остекления. Для жилых помещений он не подходит, а для балконов и лоджий, как раз то, что надо.

Изготавливаются окна Slidors из экологически безопасного поливинилхлорида. Они являются прочными, легкими по сравнению с пластиковым профилем КВЕ и теплыми, в отличии от алюминиевого профиля Provedal.
Данная профильная система проста в использовании, хотя имеет сложное устройство. Фурнитура, поставляемая российскими производителями, препятствует проникновению холода в помещение, поскольку створки плотно прилегают к окну. Также герметичность остекления Slidors защищает от атмосферных осадков, шума и пыли, о чем говорят многочисленные отзывы покупателей.

Slidors профиль постоянно усовершенствуется. Сейчас выпускают стеклопакеты с теплосберегающим покрытием. Оно не выпускает тепло с помещения и в жаркую погоду не пропускает солнечные лучи вовнутрь , таким образом, экономит зимой на отоплении, и создает прохладу летом.
В отличии от профиля из алюминия , в Slidors устанавливаются щеточные уплотнения, которые имеют пластиковую прокладку. Находятся они с двух сторон между створкой и профилем.
Слайдорс – единственная профильная система, которая подходит для балконного окна с любым размером и формой.
Что касается раздвижных систем, то они не замерзают в сильные морозы и вы, не прилагая особых усилий, откроете окно. Сам механизм может иметь и нераздвижные створки, при этом раздвижные будут открываться наиболее удобным для вас способом. Что является очередным преимуществом.
Профиль слайдорс оснащен защитным замком в виде серпа и пластиковой деталью – филингписом, которые не дадут ни малейшей возможности проникнуть в дом нежеланным гостям. От комаров защитит свободно передвигающаяся по всей площади окна москитная сетка . Для нее предназначены отдельные рельсы.

Москитная сетка на раздвижные окна Слайдорс
Окна пластиковые слайдорс подойдут в любой интерьер помещения, поскольку их можно заламинировать пленкой необходимого цвета и текстуры, например дерева. А значит можно сэкономить на деревянных окнах, а вид останется таким же привлекательным.